- 74,94 m²
- 4
- 3
- 1
- 1
Description
Meet-Immobilier vous propose en exclusivité un appartement 4 pièces, avec jardin et une deuxiéme entrée (privative) dans la rue d'a coté.
Dans le quartier très recherché du Port à l'Anglais.
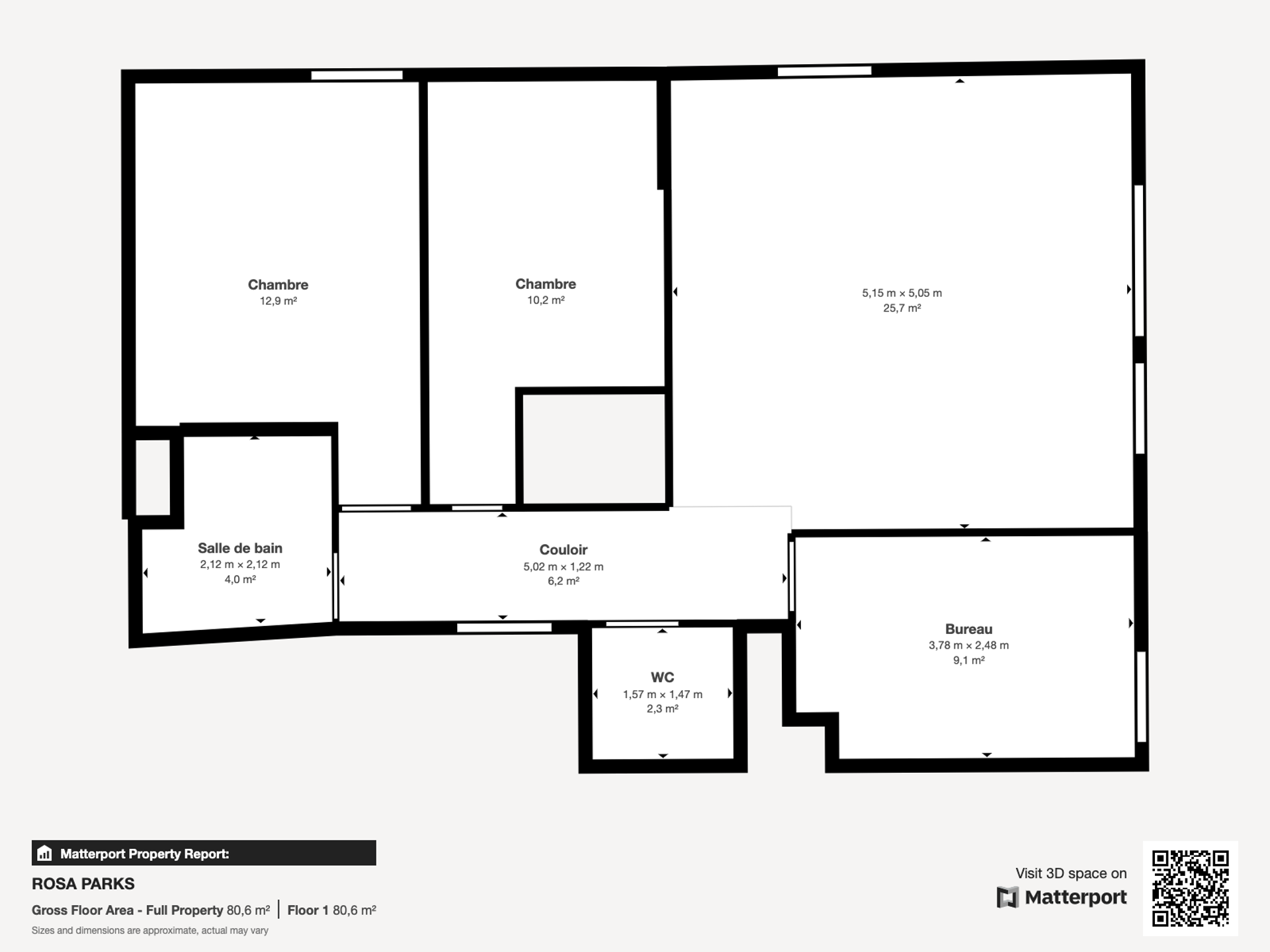
Le bien se compose d'une entrée, séjour/cuisine américaine avec accès au jardin, salle de bains, WC séparé avec lave-mais, ainsi que trois chambres avec rangements (deux chambres donnent accès au jardin).
Les avantages de cet appartement ne s'arrêtent pas là : agencement intelligent, luminosité grâce à ces nombreuses fenêtres et son exposition sud/est, un balcon acessible par la troisième chambre et par le séjour, un jardin d'environs 80m² où on peut installer un salon d'extérieur ou une table pour les beaux jours.
Idéalement situé vous apprécierez la vue, ainsi que la proximité avec les commerces et à deux pas de la gare du RER C de Vitry-sur-Seine, offrant un accès direct à Saint-Michel en 15 minutes.
Proche des meilleures écoles de Vitry sur seine, soit : Eva salmon pour la maternelle, Montesquieu pour le primaire et Audin pour le collège.
Aucuns travaux à prévoir, au calme. Une place de parking en sous-sol vient compléter les atouts de cet appartement.
Prestations de qualité, agencement parfait. Les charges comprend l'eau chaude, l'eau froide, et le chauffage.
Copropriété de 2019, conforme à la réglementation énergétique RT2012.
Une visite virtuelle est disponible pour vous projeter aisément dans ce bien.
Tietta OTTONI se tient à votre disposition pour tout renseignement complémentaire au 06 02 27 35 20.
Les informations sur les risques auxquels ce bien est exposé sont disponibles sur le site Géorisques :
https://www.georisques.gouv.fr/
Performance Energétique
(énergie primaire)
(gaz à effet de serre)
énergétique
à effet de serre
Informations complémentaires
Les biens ci-avant désignés représentant les lots n° 101, 343 de la copropriété qui comporte 439 lots.
La moyenne des charges courantes annuelles pour ces lots est de 2812 €/an.
Les informations sur les risques auxquels ce bien est exposé sont disponibles sur le site Géorisques: www.georisques.gouv.fr
Nos honorairesGénéral
- Référence 6785742
- Catégorie Appartement
- Nombre de chambres 3
- Nombre de salles de bain 1
- Jardin Oui
- Terrasse Oui
- Parking Oui
- Surface habitable 74,94 m²
Bâtiment
- Année de construction 2019
- Nombre de parking intérieur 1
- Bien en copropriété Oui
- Quote-part annuelle des charges (montant) 2812 €
- Nombre de lots 439
- Numéro de lot (details) 101, 343
Nom, catégorie & situation
- Etage 0
- Nombre d'étage 5
