- 64,18 m²
- 2
- 1
- 2
Description
Son emplacement est idéal au sein de la résidence de l'Abbaye, au calme, avec l'accès à la ligne N (gare de Villiers) à moins d'un kilomètre.
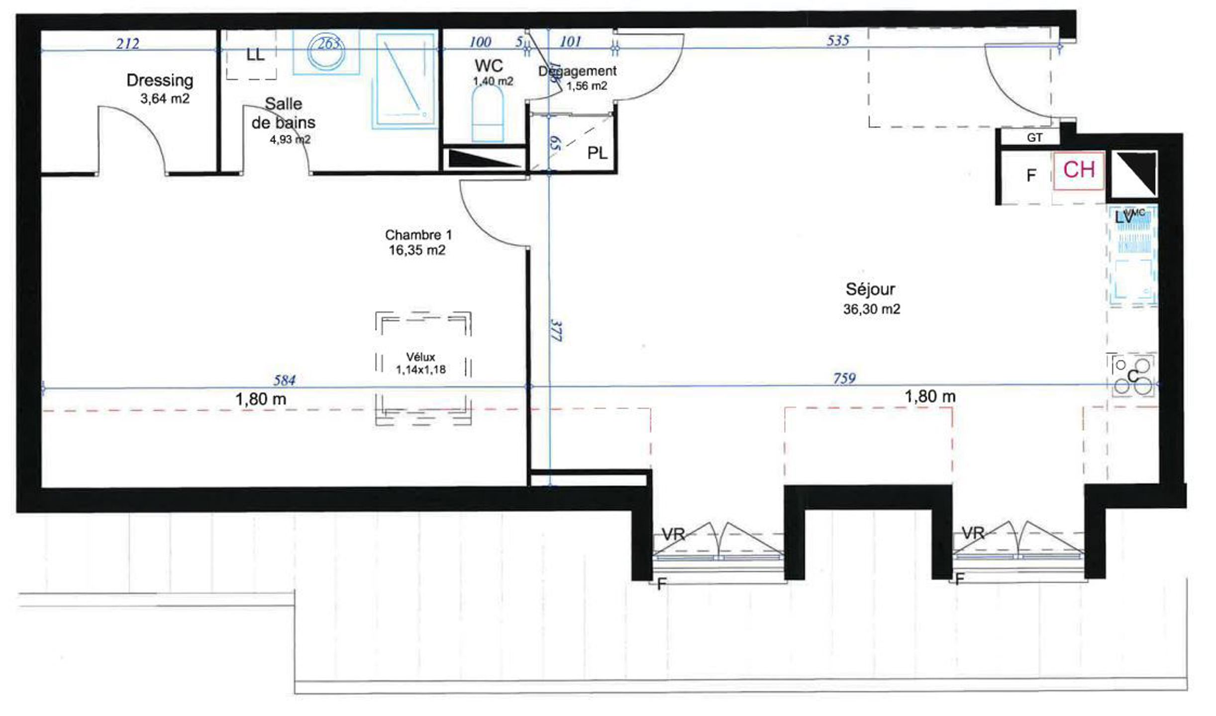
Vous apprécierez le charme de cet appartement mansardé, d'une surface de 64,18m2 carrez, au dernier étage de la résidence, à l'aménagement idéal comme indiqué sur les plans annexés.
Profitez également de deux emplacements de parking situés à l'extérieur.
Loyer H.C. / mois : 900.45 euros
Charges / mois : 56.05 euros
Honoraires charge locataire : 834.34€ TTC
Dispositif PINEL, plafond de ressources à respecter pour pouvoir accéder à la location de ce logement :
Célibataire : 38 377 euros
Couple : 57 357 euros
1 enfant : 68 946 euros
Accès sécurisé à la résidence
Chauffage individuel gaz
Fibre Internet
Nous vous remercions de nous envoyer par mail à l'adresse ci-dessous votre dossier de locataire. Mail : contact@meet-immo.com
Aucune demande ne sera traitée sans l'envoi préalable du dossier COMPLET.
Performance Energétique
(énergie primaire)
(gaz à effet de serre)
énergétique
à effet de serre
Informations complémentaires
Les informations sur les risques auxquels ce bien est exposé sont disponibles sur le site Géorisques: www.georisques.gouv.fr
Nos honorairesGénéral
- Référence 6550039
- Catégorie Appartement
- Meublé Non
- Nombre de chambres 1
- Parking Oui
- Surface habitable 64,18 m²
- Disponibilité immédiatement
Bâtiment
- Année de construction 2022
- Nombre de parking extérieur 2
Nom, catégorie & situation
- Etage 2
- Nombre d'étage 2
